Computer >> Hướng Dẫn Máy Tính >  >> Điện Thoại Thông Minh >> Điện Thoại Thông Minh

13 ứng dụng thực tế tăng cường thú vị và hữu ích cho iPhone X

13 ứng dụng thực tế tăng cường thú vị và hữu ích cho iPhone X

AR có thể chỉ mới bắt đầu trên iPhone, nhưng một số ứng dụng đã cho thấy tiềm năng lớn. Nếu bạn có một mặt bằng nằm ngang, một căn phòng đủ ánh sáng và một chiếc iPhone hiện đại, hãy tự mình kiểm tra. Khám phá khả năng của iPhone với các ứng dụng thực tế tăng cường mà bạn có thể tìm thấy trong App Store.

1. Các nền văn minh AR

13 ứng dụng thực tế tăng cường thú vị và hữu ích cho iPhone X

Được sự ủng hộ của những người dân gian uyên bác tại BBC, Civilizations AR là một cách tuyệt vời để mang các hiện vật lịch sử ấn tượng vào phòng khách của bạn. Sử dụng ứng dụng này, bạn có thể chiếu hơn 30 kho báu như Mũ bảo hiểm Corinthian, tác phẩm điêu khắc và thậm chí là xác ướp Ai Cập lên màn hình của mình, sau đó đi bộ xung quanh chúng, xoay chúng, đọc về chúng - mọi thứ bạn muốn!

Nếu bạn không thể đi xem những thứ thực tế, thì đây là đặt cược tốt nhất tiếp theo của bạn.

2. ARise

13 ứng dụng thực tế tăng cường thú vị và hữu ích cho iPhone X

Xem họ đã làm gì với cái tên ở đó? Nhưng trò chơi giải đố hấp dẫn này không chỉ là một trò chơi chữ vui nhộn. Trong mạch của Thung lũng Monument, Where Shadows Slumber và vô số trình giải đố di động thông minh khác, ARise lấy toàn bộ khái niệm về trình giải đố góc nhìn và mang lại cho bạn ấn tượng rằng nó đang ở ngay trước mặt bạn. Thay vì chỉ di chuyển thiết bị hoặc xoay máy ảnh để tiến triển, bạn cần phải đi lang thang quanh các tầng cao chót vót trước mặt, tìm ra góc nhìn phù hợp để giúp trung tâm nhỏ của bạn tiến tới giai đoạn tiếp theo.

3. Bầu trời đêm

13 ứng dụng thực tế tăng cường thú vị và hữu ích cho iPhone X

Night Sky là một trong những ứng dụng iPhone phổ biến nhất và nó xứng đáng với vòng nguyệt quế. Ứng dụng sử dụng định hướng của điện thoại và dữ liệu GPS để hiển thị hình ảnh sao chính xác về vị trí trên màn hình điện thoại của bạn. Ứng dụng này giúp bạn xác định các chòm sao, đặt tên cho các ngôi sao và tìm kiếm các hành tinh. Bạn thậm chí có thể phủ bản đồ sao lên môi trường hiện tại của mình, áp dụng bản đồ sao của ứng dụng vào điểm quan sát của máy ảnh.

4. Địa điểm IKEA

13 ứng dụng thực tế tăng cường thú vị và hữu ích cho iPhone X

IKEA Place là một trong những ứng dụng AR được biết đến nhiều hơn. Ứng dụng có thể tải xuống các mô hình 3D cho đồ nội thất IKEA và đặt chúng trong chính ngôi nhà của bạn. Xem các mô tả chính xác về kích thước và màu sắc để biết chiếc ghế dài đó sẽ trông như thế nào trong phòng khách của bạn hoặc liệu bàn phụ có khớp với bàn cà phê hay không.

5. Snapchat

13 ứng dụng thực tế tăng cường thú vị và hữu ích cho iPhone X

Mặc dù gặp khó khăn lớn về thiết kế lại gần đây của ứng dụng, Snapchat cung cấp một bộ sưu tập các tính năng AR hoạt động đáng kinh ngạc. Áp dụng mặt nạ hoạt hình cho khuôn mặt của bạn để chụp ảnh tự sướng hoặc thả các mô hình vui nhộn vào thế giới xung quanh bạn. Ngay cả khi bạn không thích Messenger, Snapchat đã đạt được một số tiến bộ ấn tượng với thiết kế thực tế tăng cường.

6. JigSpace

13 ứng dụng thực tế tăng cường thú vị và hữu ích cho iPhone X

JigSpace là một ứng dụng giáo dục sử dụng các mô hình 3D để dạy bạn về các vật thể trong thế giới thực. Từ ổ khóa đến hệ mặt trời, bạn có thể tham quan các mô hình 3D trên bàn làm việc của mình để tận mắt trải nghiệm cách thế giới vận hành. Thật thú vị khi xem bản tái tạo 3D của các máy thông thường trên mặt bàn của bạn và văn bản hướng dẫn đi kèm giúp bạn hiểu cách tất cả các phần ăn khớp với nhau. Nó đặc biệt phù hợp với trẻ em tò mò và cũng tuyệt vời cho người lớn!

7. INKHUNTER

13 ứng dụng thực tế tăng cường thú vị và hữu ích cho iPhone X

Hãy thử các hình xăm trên cơ thể bạn trước khi thực hiện với INKHUNTER. Chỉ cần vẽ một biểu tượng nhỏ trên da của bạn để cho ứng dụng biết nơi cần nhắm mục tiêu. Sau đó, chọn một hình xăm và điều chỉnh cho đến khi mọi thứ trông như ý. Bạn có thể áp dụng các hình xăm được cài đặt sẵn, tìm hình xăm trực tuyến hoặc chèn các thiết kế tùy chỉnh của riêng bạn, sau đó chia sẻ kết quả trên phương tiện truyền thông xã hội hoặc lưu lại để xem xét sau.

8. GIPHY World

13 ứng dụng thực tế tăng cường thú vị và hữu ích cho iPhone X

Giống như ứng dụng GIPHY GIF, GIPHY World được tạo ra để giúp bạn tạo ra các video và thông điệp vui nhộn mà bạn có thể chia sẻ với bạn bè của mình. Bạn đặt các mô hình 3D được vẽ từ thư viện của GIPHY ở thế giới xung quanh bạn, quay video rồi chia sẻ với bạn bè và những người theo dõi. Nó hơi sến súa nhưng nó khiến phong cách Snapchat trở nên thú vị bên ngoài thế giới của ứng dụng Messenger.

9. Holo

13 ứng dụng thực tế tăng cường thú vị và hữu ích cho iPhone X

Holo tương tự như GIPHY World, nhưng bộ sưu tập mô hình 3D lớn hơn một chút. Đó là ý tưởng tương tự như GIPHY, đặt các phiên bản 3D của GIF lặp lại vào môi trường của bạn. Tạo cảnh, quay video và chia sẻ với những người theo dõi và bạn bè của bạn.

10. Thyngs

13 ứng dụng thực tế tăng cường thú vị và hữu ích cho iPhone X

Thyngs sử dụng ARKit để cho phép người dùng đặt các mô hình hoạt hình 3D trong thế giới thực của họ. Đây là một khám phá khá đơn giản về công nghệ AR, nhưng bạn có thể thỏa sức sáng tạo và tạo ra một số cảnh vui nhộn. Các mô hình có sẵn ít tập trung vào meme hơn các ứng dụng khác trong danh sách của chúng tôi. Bạn thực sự có thể tạo ra những cảnh và hình ảnh thú vị hơn là chỉ cắt dán meme ngu ngốc trong không gian ba chiều.

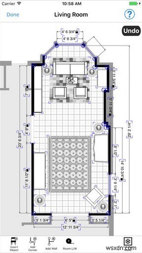
11. Kế hoạch ma thuật

13 ứng dụng thực tế tăng cường thú vị và hữu ích cho iPhone X

Trong số các ứng dụng đo AR ở đây, Magic Plan là ứng dụng có đầy đủ tính năng nhất. Đây cũng là ứng dụng khó sử dụng nhất để đo nhanh, đó là lý do tại sao nó không phải là ứng dụng đo duy nhất trong danh sách của chúng tôi. Tốt nhất là tạo sơ đồ tầng từ trên xuống phức tạp để lập kế hoạch dự án xây dựng, tu sửa hoặc mua đồ nội thất. Đo phòng để tạo sơ đồ mặt bằng, sau đó di chuyển các mục trên sơ đồ tầng và nhập các mục tiêu chuẩn vào sơ đồ của bạn. Bạn cũng có thể mua sơ đồ mặt bằng được tạo sẵn hoặc đăng ký gói đăng ký sơ đồ mặt bằng. Đây là điều tuyệt vời nhất dành cho thị trường mục tiêu là các đại lý bất động sản và nhà thầu, những người sẽ đánh giá cao các tính năng chuyên nghiệp trả phí, công cụ ước tính chi phí và hỗ trợ cho một số máy đo khoảng cách laser.

12. PLNAR

13 ứng dụng thực tế tăng cường thú vị và hữu ích cho iPhone X

PLNAR đo các đối tượng trong thế giới thực thông qua hoạt động của camera AR. Bạn không thể mong đợi các phép đo chính xác và bạn sẽ muốn có một tay máy ảnh ổn định. Nhưng ngay cả như vậy, bạn vẫn có thể sử dụng ứng dụng này và tạo ra các mô hình phòng ba chiều. Lưu các phép đo để sử dụng sau, xem kế hoạch từ các góc độ khác và đo các khu vực khó tiếp cận. Nó cũng hoạt động ở cả ba chiều, không giống như giới hạn chiều ngang của TapMeasure. Nếu ứng dụng chính xác hơn, nó sẽ là một kẻ giết người. Cho đến lúc đó, đó là một tiện ích thú vị.

13. TapMeasure

13 ứng dụng thực tế tăng cường thú vị và hữu ích cho iPhone X

Giống như PLNAR, TapMeasure đo bằng AR. Đôi khi nó có thể chính xác hơn PLNAR, vì vậy bạn nên thử cả hai để xem bạn thích cái nào hơn. Sử dụng ứng dụng để đo kích thước của một căn phòng và xuất mô hình SketchUp của vị trí đó.

Kết luận

Nhiều ứng dụng AR khá giống nhau. Vẫn chưa có một ý tưởng sát thủ nào cho AR, nhưng một ý tưởng có thể sẽ ra mắt vào ngày mai. Hiện tại, bạn có thể khám phá con đường mới này cho thiết kế ứng dụng trên App Store với các ứng dụng này và các ứng dụng khác.

Bài viết này đã được cập nhật vào tháng 10 năm 2018 để bao gồm nhiều ứng dụng AR hơn vào danh sách.